Casa Pirenópolis
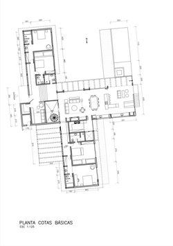
A mata ciliar nos fundos do lote, a presença do rio (mesmo que este não seja visto, sabemo-lo: dali vem a umidade, o verde, a vida, o vento), a visão da serra e do nascer do sol e as árvores de maior porte e expressividade guiam o assentar da casa. É para eles que toda a arquitetura se volta. É para a vista da mata a leste que os quartos olham e que a piscina e a varanda se abrem. É também para leste que apontam a sala e o mirante acima desta, que possuem uma visão mais ampla do terreno; o mirante alcançando 360 graus. Portanto, a casa nasce no terreno de forma a contemplar e se integrar à natureza ao seu redor.
De outra parte, do outro lado da rua, há, neste ponto, uma aglomeração de casas. Como o intuito é ter privacidade, a casa dá “as costas para a rua”. Os usos internos lindeiros à fachada frontal (circulação e depósitos) estimulam uma composição praticamente cega desta, onde aberturas altas permitem ventilação e entrada de luz, mas não a visão.
Além disso, a base do projeto é uma casa plana, desenvolvida em um só pavimento, que se integre ao terreno e deixe que a natureza esteja em primeiro plano.
O projeto se organiza em 2 principais setores:
•setor ínitimo, corresponde às suítes e se divide em 2 blocos localizados na parte mais frontal do terreno. Paralelos à rua, os blocos voltam suas costas para esta e se abrem para a mata;
•setor social, ocupado por cozinha e salas, se assenta perpendicularmente à mata, com vista para todos os lados, exceto para a rua. Interliga-se com área de lazer (varanda, piscina) e mirante.
![]() Planta | ![]() Situação | ![]() Implantação |
|---|---|---|
![]() ducha piscina | ![]() fachada principal | ![]() entrada - tijolos adobe |
![]() varanda e pérgola | ![]() quartos e área serviço | ![]() fachada interna |
![]() anoitecer | ![]() varanda e piscna | ![]() Vista jantar varanda gourmet |
![]() vista cozinha sala | ![]() vista poscina casa | ![]() vista piscina casa |
![]() pérgola piscina | ![]() piscina à noite | ![]() vista jantar varanda |
![]() Vista jantar varandafoto guanabaratejo | ![]() corredor quartos ala norte e sala tv | ![]() quarto 1 |
![]() detalhe | ![]() sala tv | ![]() escada entrada |
![]() hall entrada e jardim de inverno | ![]() corredor ala sul | ![]() área serviço e horta |
![]() quarto 2 | ![]() jardim de inverno | ![]() fachada quarto área serviço |





























